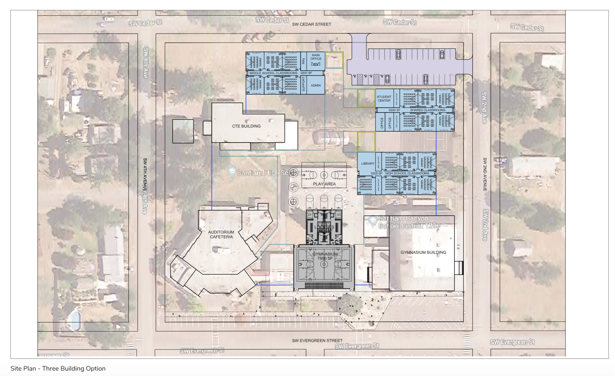
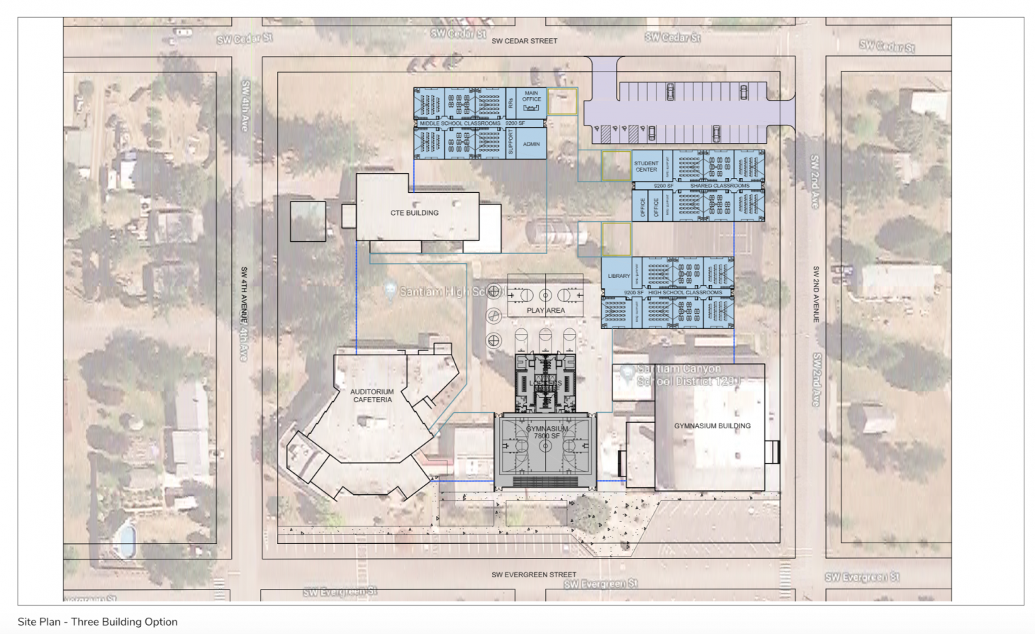
This May, the Santiam Canyon School District could be asking the community to vote on a $17,900,000 school bond measure. This plan cost has nearly be cut in half from our original plans, yet still gives us a great facility that will meet the needs of our students now and into the future.
The plan would construct:
- Replacement Santiam Junior/Senior High School (SJSHS) classrooms
- Additional classrooms to grow our programs and meet the increased enrollment needs
- Build classrooms designed for academic and vocational learning
- Replace facilities that are past their useful life, while adding new safety and security features
- Add an auxiliary gymnasium for increase PE needs and after school activities (while keeping the existing gym)
- Add a cafeteria at Santiam Elementary School
We have reached a point where the existing SJSHS classroom building needs millions in repairs to keep it viable, yet those repairs would not be long lasting or help us improve the quality of education or need for additional space. Repairing that building is not a viable option. Replacement is the best scenario for that building and our students. To learn more about our two year planning effort and and learn more about the plan, please check out the following link:
If you have questions, please email Todd Miller at todd.miller@santiam.k12.or.us or call at 503-897-2321.
